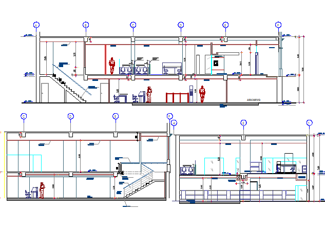
Front and side sectional details of bank building dwg file
Description
Front and side sectional details of bank building dwg file.
Front and side sectional details of bank building hat includes a detailed view of flooring view, wall sections, doors and windows, staircase view, wall design, dimensions, front desk, rec curing area, waiting area, seating area, reception area, inquiry desk, corporate offices and much more of bank section.
Uploaded by:

