LOGIN
HOME
CATEGORIES
UPLOAD FILE
PRICING
HOUSE PLAN
ABOUT US
CONTACT US
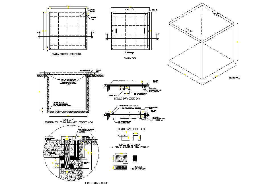
Record type blocks well autocad file
Home
Categories
Details
Construction Details
Record type blocks well autocad file
Uploaded by:
Dhara
View Profile
View Profile
Description
Record type blocks well autocad file, dimension detail, naming detail, section line detail, isometric view detail, reinforcement detail, etc.
File Type:
DWG
File Size:
249 KB
Category::
Details
Sub Category::
Construction Details
type:
Gold
Uploaded by:
Dhara
View Profile
Download
Add to libary
find Latest
Related
Files