Sanitary installation and sectional details of municipal office dwg file
Description
Sanitary installation and sectional details of municipal office dwg file.
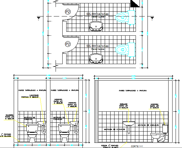
Sanitary installation and sectional details of municipal office that includes a detailed view of sanitary sections, floor view, toilet sheet installation view, wash basin view, passage, doors and ventilation and much more of office project.
Uploaded by:

