Plan market architecture layout file

Plan market architecture layout file
Profile

Uploaded by:

Dhara

Description
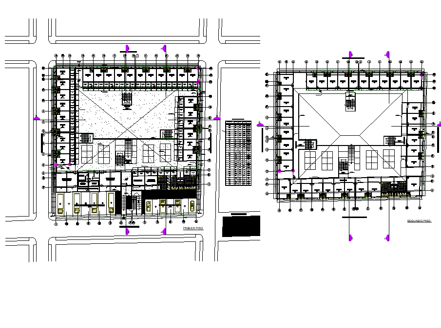
Plan market architecture layout file, centre line plan detail, dimension detail, naming detail, stair detail, road detail, cut out detail, truck parking detail, hatching detail, etc.
Profile

Uploaded by:

Dhara

find Latest

Related Files

WhatsApp Chat