LOGIN
HOME
CATEGORIES
UPLOAD FILE
PRICING
HOUSE PLAN
ABOUT US
CONTACT US
Corporate Office Plan In CAD Blocks
Home
Categories
Architecture
Government Building
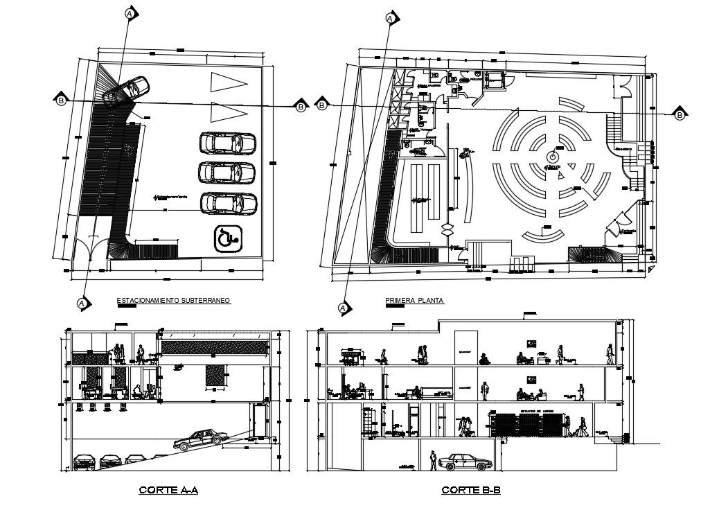
Corporate Office Plan In CAD Blocks
Uploaded by:
Dhara
View Profile
View Profile
Description
Corporate Office Plan which includes dimension detail underground parking, first-floor detail, lockers, elevator, warehouse, entry-exit gate, etc
File Type:
DWG
File Size:
6 MB
Category::
Architecture
Sub Category::
Government Building
type:
Gold
Uploaded by:
Dhara
View Profile
Download
Add to libary
find Latest
Related
Files