LOGIN
HOME
CATEGORIES
UPLOAD FILE
PRICING
HOUSE PLAN
ABOUT US
CONTACT US
Commercial Building Floor Plan In AutoCAD File
Home
Categories
Architecture
Corporate Building
Commercial Building Floor Plan In AutoCAD File
Uploaded by:
Parth
View Profile
View Profile
Description
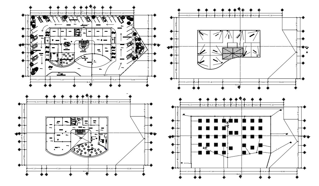
Commercial Building Floor Plan In AutoCAD File which includes the parking area, reception area, garden area, entrance gate restaurant area.
File Type:
DWG
File Size:
4.1 MB
Category::
Architecture
Sub Category::
Corporate Building
type:
Gold
Uploaded by:
Parth
View Profile
Download
Add to libary
find Latest
Related
Files