Pro panel liquefied gas installation in a retail store project dwg file
Description
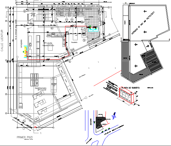
Pro panel liquefied gas installation in a retail store project dwg file.
Pro panel liquefied gas installation in a retail store project that includes a detailed view of gas installation store site plan details, architecture layout plan details with store structure with billing counter, gas line, gas line control room and much more of store project.
File Type:
DWG
File Size:
248 KB
Category::
Interior Design
Sub Category::
Showroom & Shop Interior
type:
Gold
Uploaded by:

