Clothes store in a fashion mall architecture drawing details dwg file
Description
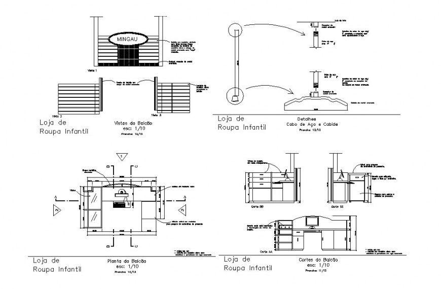
Clothes store in a fashion mall architecture drawing details that includes a detailed view of elevation and sectional details, doors and windows details, dimensions and measures detailed provided. furniture blocks details and much more of store details.
File Type:
DWG
File Size:
245 KB
Category::
Interior Design
Sub Category::
Showroom & Shop Interior
type:
Gold

Uploaded by:
Eiz
Luna

