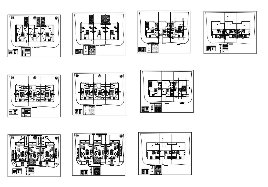
Multi-family apartment building floors layout plan details dwg file
Description
Multi-family apartment building floors layout plan details that includes a detailed view of main entry house door, drawing room, living room, family hall, kitchen, dining area, indoor staircases, laundry area, balcony, bedroom, master bedroom, toilets and bathroom, indoor doors, furniture details and much more of apartment building project.
Uploaded by:
