LOGIN
HOME
CATEGORIES
UPLOAD FILE
PRICING
HOUSE PLAN
ABOUT US
CONTACT US
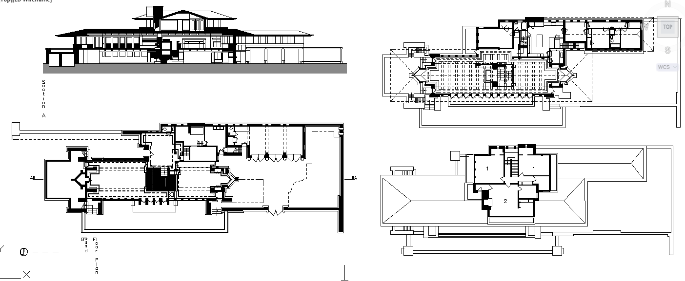
Robie House plan
Home
Categories
Architecture
House Plan
Robie House plan
Uploaded by:
Liam
White
View Profile
View Profile
Description
Robie House plan DWG, Robie House plan Download file, Robie House plan Design. The most serious threat to the existence of the Robie House arose 16 years later.
File Type:
DWG
File Size:
218 KB
Category::
Architecture
Sub Category::
House Plan
type:
Free
Uploaded by:
Liam
White
View Profile
Download
Add to libary
find Latest
Related
Files