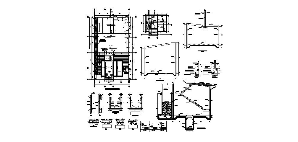
Staircase plan, section and construction cad drawing details dwg file
Description
Staircase plan, section and construction cad drawing details that includes a detailed view of front sectional view with main stairways, stairways sectional view of terrace stairways, doors and windows view, vest scenario, ceramic floor, horizontal section, tapizon novoflor corrugated beige, ceramic floor clime color Blanco, foot print ceramic, novice glue, steps details, supportive wooden railing installation, base floor concrete plan, wall construction dimensions view, supportive pillar view and much more of stairways details.
Uploaded by:
