Living Room Plan Design with Detailed Layout and Dimensions – DWG
Description
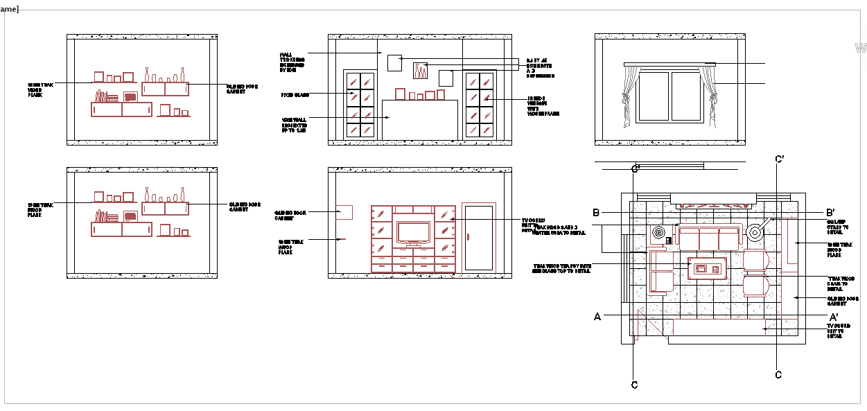
This DWG file offers a detailed living room plan design with precise measurements and layout. The design includes multiple views, such as sectional and front elevations, showcasing key elements like furniture placement, windows, and door arrangements. Each view provides clear dimensions for walls, furniture, and spaces, making it easy to visualize the interior layout. The living room plan also features essential details like cabinetry, TV units, and the integration of natural light through window placement. Ideal for architects, interior designers, and engineers, this file offers a professional and comprehensive reference for any residential or commercial living space project.
File Type:
DWG
File Size:
723 KB
Category::
Interior Design
Sub Category::
Drawing And Living Area Interior Design
type:
Gold

Uploaded by:
Jafania
Waxy

