Dwg file of office with sections

 Dwg file of office with sections
Profile

Uploaded by:

K.H.J

Jani

Description
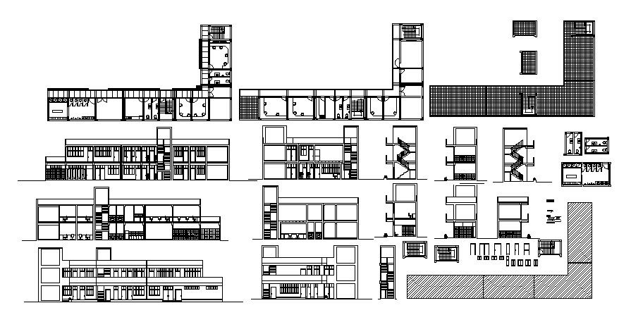
Dwg file of office with sections it include ground floor plan, sections, front facade, it also include reception area, waiting area, toilets, workstation, etc
Profile

Uploaded by:

K.H.J

Jani

find Latest

Related Files

WhatsApp Chat