Layout commercial plan detail dwg file

Layout commercial plan detail dwg file
Profile

Uploaded by:

Dhara

Description
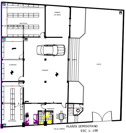
Layout commercial plan detail dwg file, Layout commercial plan detail with naming detail, furniture detail with chair, table, door and window, car parking detail, stair detail, etc.
Profile

Uploaded by:

Dhara

find Latest

Related Files