LOGIN
HOME
CATEGORIES
UPLOAD FILE
PRICING
HOUSE PLAN
ABOUT US
CONTACT US
Dwg file of kitchen with elevations
Home
Categories
Interior Design
Kitchen Interiors
Dwg file of kitchen with elevations
Uploaded by:
K.H.J
Jani
View Profile
View Profile
Description
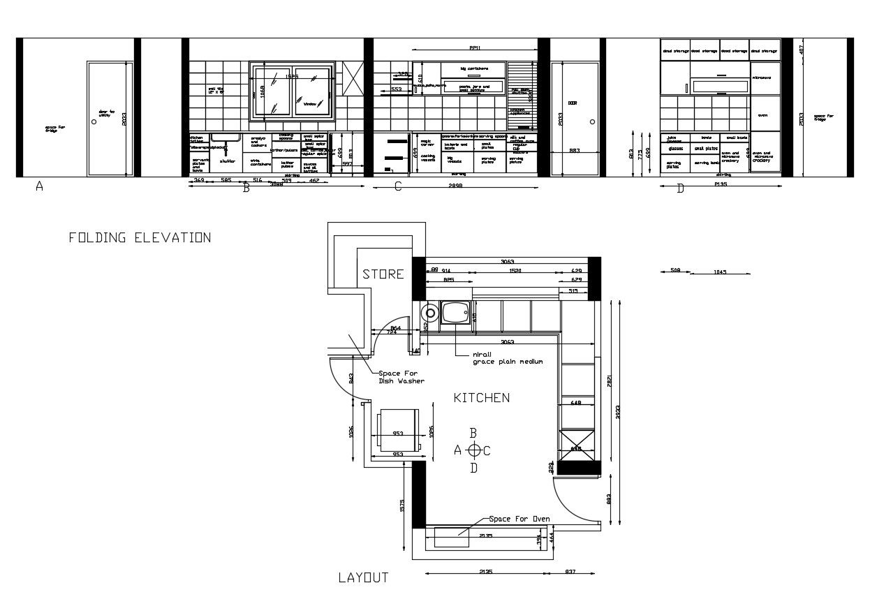
Dwg file of kitchen with elevations it include kitchen layout, elevation, platform area, serving platform,chokdii,overhead unit etc
File Type:
DWG
File Size:
65 KB
Category::
Interior Design
Sub Category::
Kitchen Interiors
type:
Gold
Uploaded by:
K.H.J
Jani
View Profile
Download
Add to libary
find Latest
Related
Files