LOGIN
HOME
CATEGORIES
UPLOAD FILE
PRICING
HOUSE PLAN
ABOUT US
CONTACT US
Autocad drawing of hotel
Home
Categories
Architecture
Hotels and Restaurants
Autocad drawing of hotel
Uploaded by:
K.H.J
Jani
View Profile
View Profile
Description
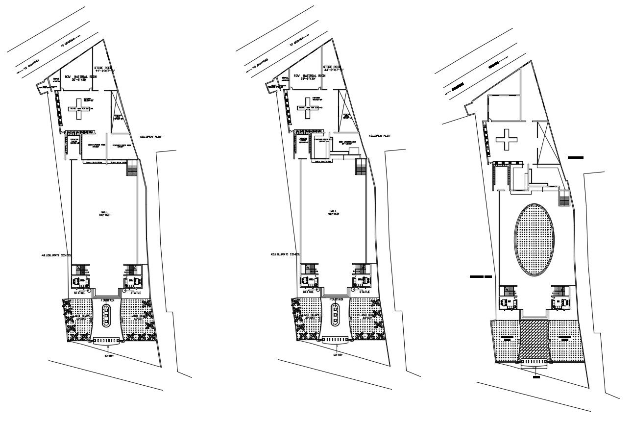
Autocad drawing of hotel it includes landscaping, seating, office, kitchen, storage, toilets, hall, etc
File Type:
DWG
File Size:
472 KB
Category::
Architecture
Sub Category::
Hotels and Restaurants
type:
Gold
Uploaded by:
K.H.J
Jani
View Profile
Download
Add to libary
find Latest
Related
Files