LOGIN
HOME
CATEGORIES
UPLOAD FILE
PRICING
HOUSE PLAN
ABOUT US
CONTACT US
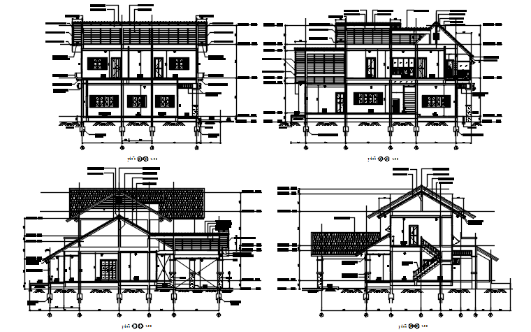
Elevation drawing of the bungalow in AutoCAD
Home
Categories
Architecture
House Plan
Elevation drawing of the bungalow in AutoCAD
Uploaded by:
Eiz
Luna
View Profile
View Profile
Description
Elevation drawing of the bungalow in AutoCAD which provide detail of front elevation, side elevation, back elevation, detail of floor level, etc.
File Type:
DWG
File Size:
2 MB
Category::
Architecture
Sub Category::
House Plan
type:
Gold
Uploaded by:
Eiz
Luna
View Profile
Download
Add to libary
find Latest
Related
Files