Autocad drawing of school

Autocad drawing of school
Profile

Uploaded by:

K.H.J

Jani

Description
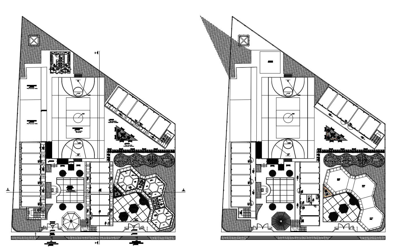
Autocad drawing of school it include first floor layout, ground floor layout ,floor layout, it also include canteen, playground area, classes, toilets, staff room, etc
Profile

Uploaded by:

K.H.J

Jani

find Latest

Related Files

WhatsApp Chat