LOGIN
HOME
CATEGORIES
UPLOAD FILE
PRICING
HOUSE PLAN
ABOUT US
CONTACT US
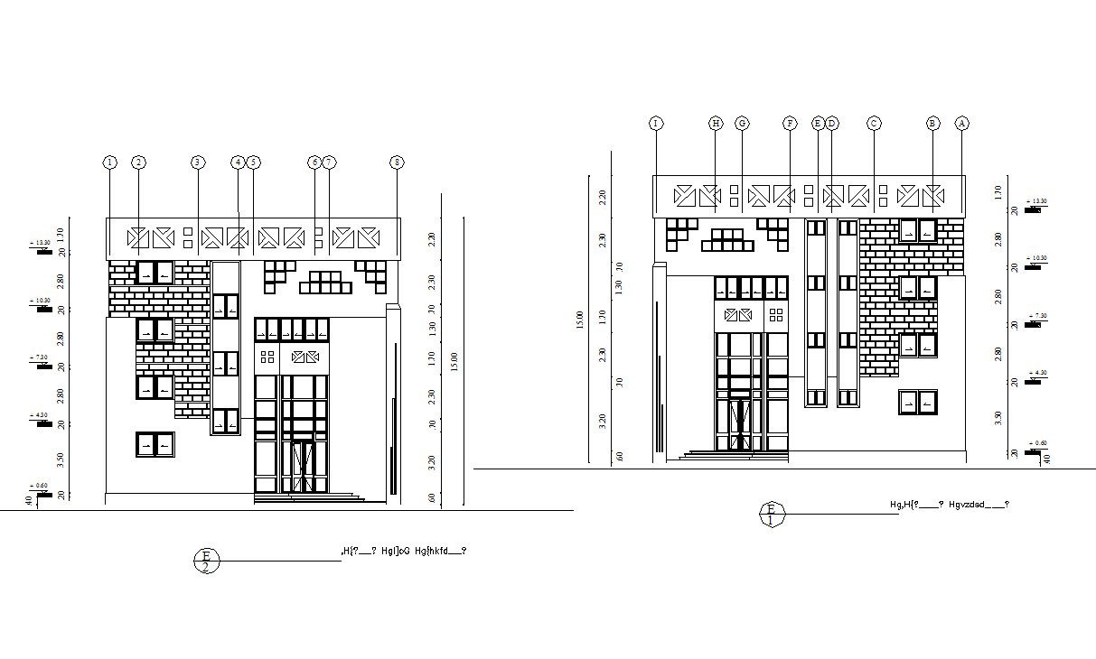
Office elevation in autocad
Home
Categories
Architecture
Corporate Building
Office elevation in autocad
Uploaded by:
K.H.J
Jani
View Profile
View Profile
Description
Office elevation in autocad it include front facade,sections,floor layout it also include doors,windows,staircase, etc
File Type:
DWG
File Size:
304 KB
Category::
Architecture
Sub Category::
Corporate Building
type:
Gold
Uploaded by:
K.H.J
Jani
View Profile
Download
Add to libary
find Latest
Related
Files