Autocad drawing of bar restaurant

Autocad drawing of bar restaurant
Profile

Uploaded by:

K.H.J

Jani

Description
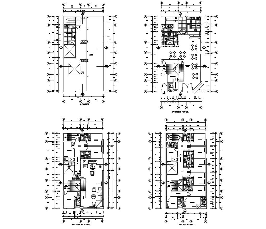
Autocad drawing of bar restaurant it include ground floor layout,first floor layout,third floor layout,rooftop layout it also include reception,waiting area,seating area,etc
Profile

Uploaded by:

K.H.J

Jani

find Latest

Related Files

WhatsApp Chat