Hostel drawing in autocad
Description
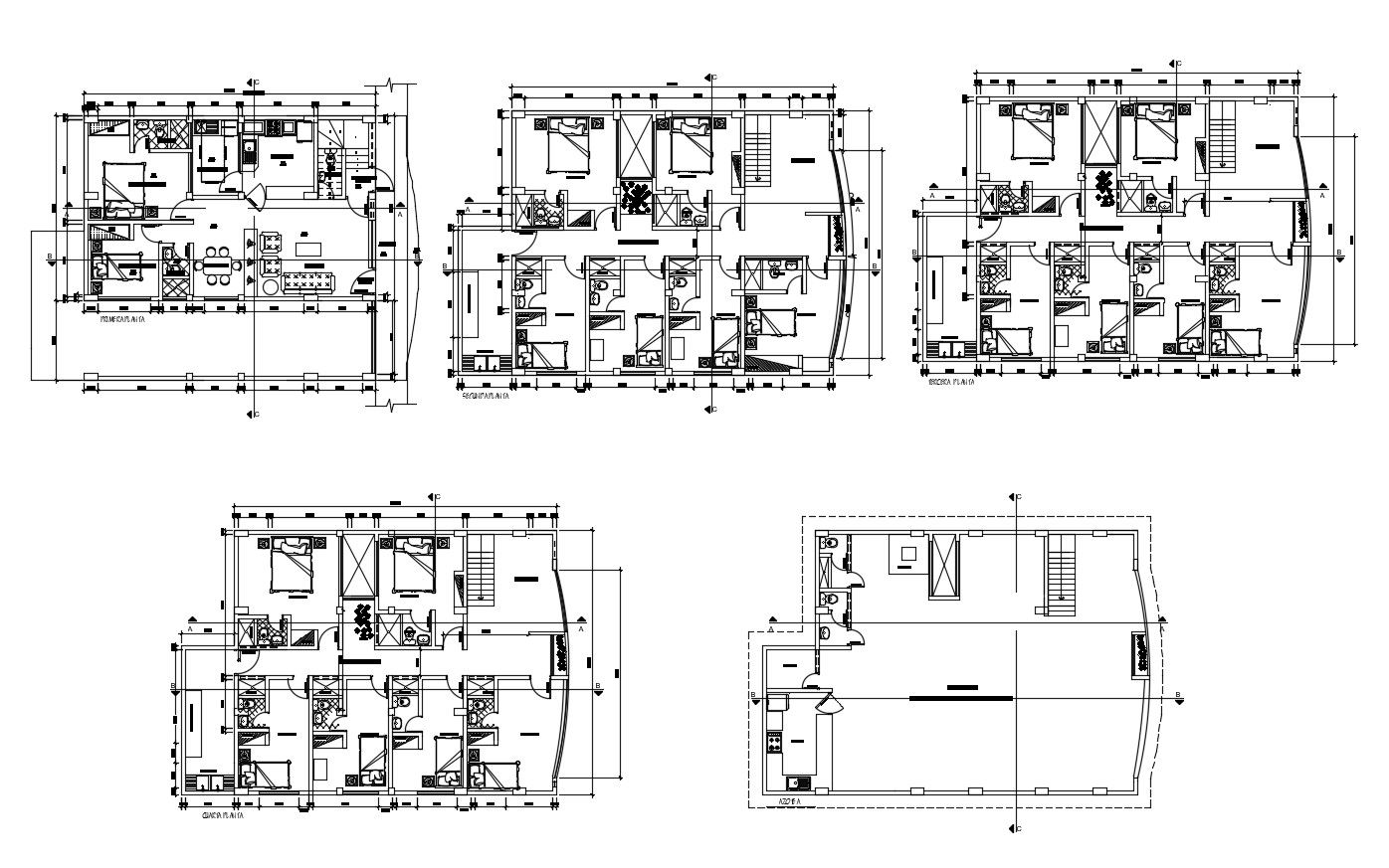
Hostel drawing in autocad it include ground floor layout,first floor layout,second floor layout,terrace layout it also include dormitory area,reception area,waiting area,admin area,etc
Uploaded by:
K.H.J
Jani
