School cultural hall architecture layout plan details dwg file
Description
School cultural hall architecture layout plan details dwg file.
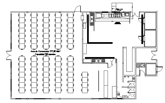
School cultural hall architecture layout plan details that includes a detailed view of main entry gate, sitting area, chair, performance stage, admin office, store room, toilets for male and female, walking passage and much more of school details.
Uploaded by:

