LOGIN
HOME
CATEGORIES
UPLOAD FILE
PRICING
HOUSE PLAN
ABOUT US
CONTACT US
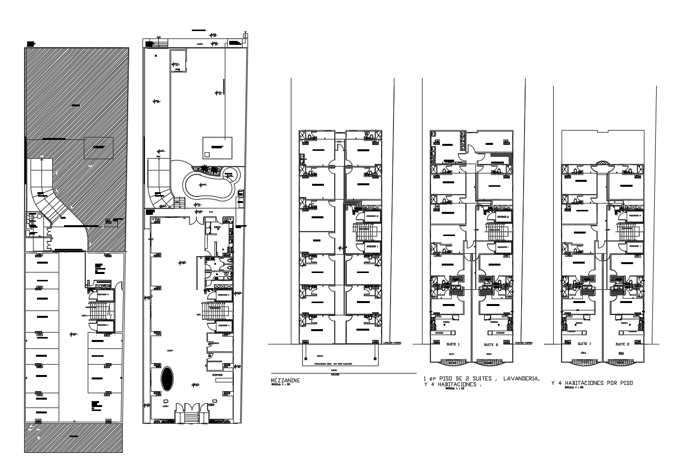
Hotel plan with detail dimension in dwg file
Home
Categories
Architecture
Hotels and Restaurants
Hotel plan with detail dimension in dwg file
Uploaded by:
Eiz
Luna
View Profile
View Profile
Description
Hotel plan with detail dimension in dwg file which provides detail of hall, lobby, room, kitchen, WC and bath, garden area, swimming pool, etc.
File Type:
DWG
File Size:
5.1 MB
Category::
Architecture
Sub Category::
Hotels and Restaurants
type:
Gold
Uploaded by:
Eiz
Luna
View Profile
Download
Add to libary
find Latest
Related
Files