LOGIN
HOME
CATEGORIES
UPLOAD FILE
PRICING
HOUSE PLAN
ABOUT US
CONTACT US
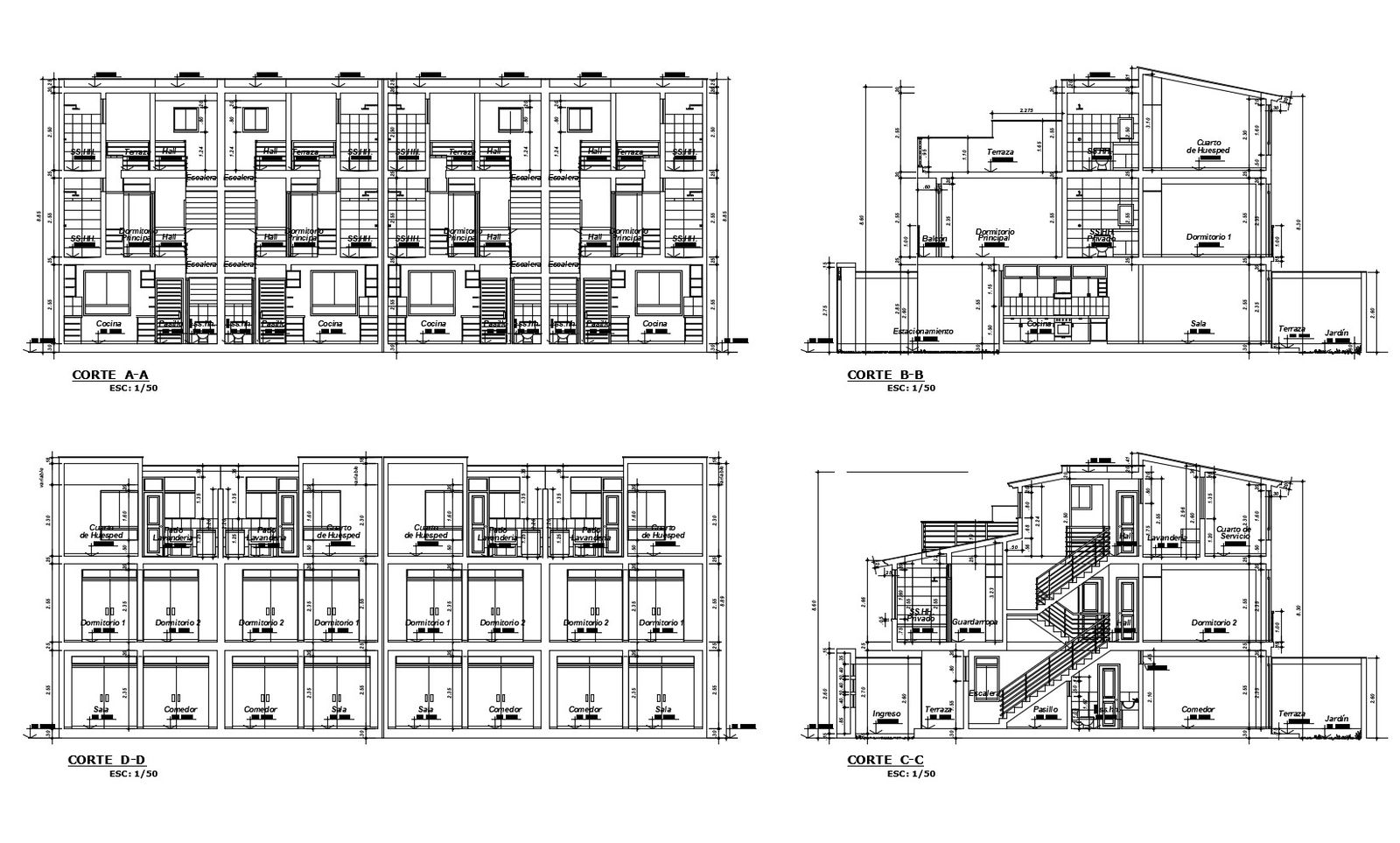
Drawing of house with section details in dwg file
Home
Categories
Architecture
House Plan
Drawing of house with section details in dwg file
Uploaded by:
Eiz
Luna
View Profile
View Profile
Description
Drawing of house with section details in dwg file which provide detail of different sections, detail of floor level, etc.
File Type:
DWG
File Size:
585 KB
Category::
Architecture
Sub Category::
House Plan
type:
Gold
Uploaded by:
Eiz
Luna
View Profile
Download
Add to libary
find Latest
Related
Files