LOGIN
HOME
CATEGORIES
UPLOAD FILE
PRICING
HOUSE PLAN
ABOUT US
CONTACT US
Resort drawing in dwg file
Home
Categories
Architecture
Hotels and Restaurants
Resort drawing in dwg file
Uploaded by:
K.H.J
Jani
View Profile
View Profile
Description
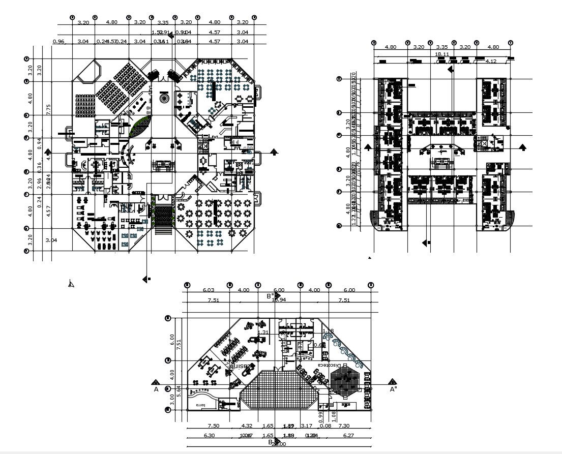
Resort drawing in dwg file it include ground floor layout, first-floor layout,it also includes disco, kitchen, bars, gym, admin area, restaurant,etc
File Type:
DWG
File Size:
7.3 MB
Category::
Architecture
Sub Category::
Hotels and Restaurants
type:
Gold
Uploaded by:
K.H.J
Jani
View Profile
Download
Add to libary
find Latest
Related
Files