LOGIN
HOME
CATEGORIES
UPLOAD FILE
PRICING
HOUSE PLAN
ABOUT US
CONTACT US
Dwg file residential apartment sections
Home
Categories
Architecture
Apartment Drawing
Dwg file residential apartment sections
Uploaded by:
K.H.J
Jani
View Profile
View Profile
Description
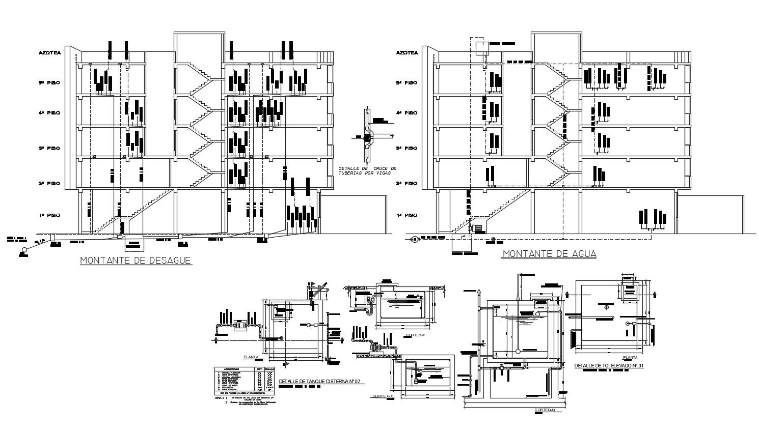
Dwg file residential apartment sections it include sectional elevation,sections,floor level,etc
File Type:
DWG
File Size:
1.3 MB
Category::
Architecture
Sub Category::
Apartment Drawing
type:
Gold
Uploaded by:
K.H.J
Jani
View Profile
Download
Add to libary
find Latest
Related
Files