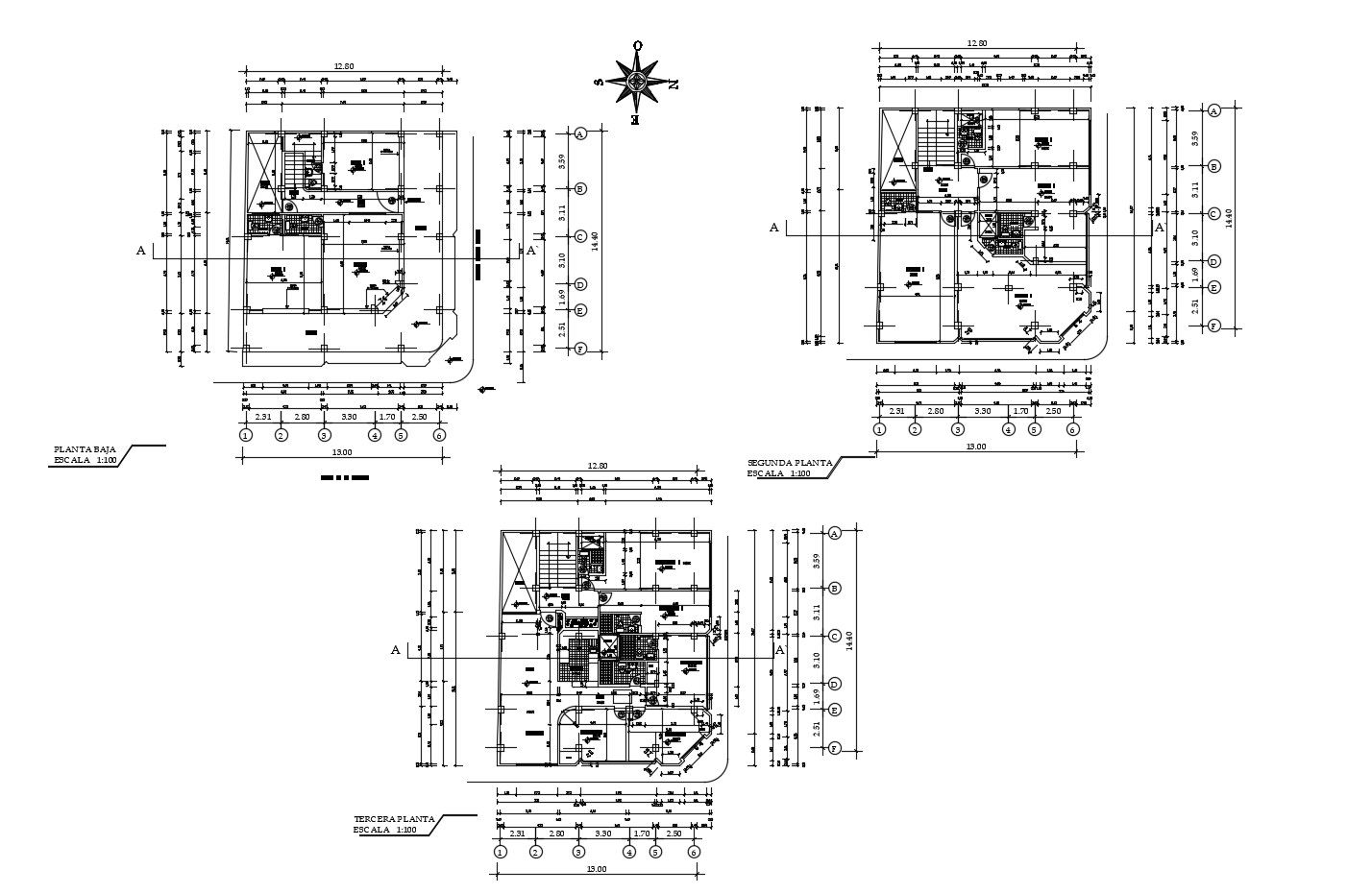
Floor plan of residential building with detail dimension in AutoCAD
Description
Floor plan of residential building with detail dimension in AutoCAD which provide detail of c etc it also gives detail of office area.

Uploaded by:
Eiz
Luna

Uploaded by:
Luna