LOGIN
HOME
CATEGORIES
UPLOAD FILE
PRICING
HOUSE PLAN
ABOUT US
CONTACT US
Toilet layout and elevations in dwg file
Home
Categories
Interior Design
Bathroom Interior
Toilet layout and elevations in dwg file
Uploaded by:
K.H.J
Jani
View Profile
View Profile
Description
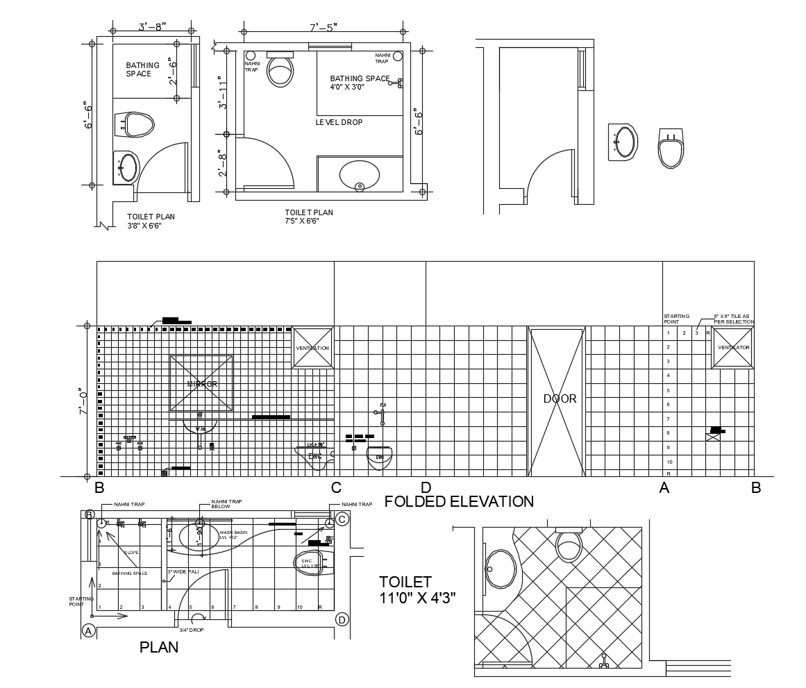
Toilet layout and elevations in dwg file it includes floor layout,folded elevation it also include w.c,wet and dry area,basin,mirror,etc
File Type:
DWG
File Size:
230 KB
Category::
Interior Design
Sub Category::
Bathroom Interior
type:
Gold
Uploaded by:
K.H.J
Jani
View Profile
Download
Add to libary
find Latest
Related
Files