Single-family house with detail dimension in AutoCAD
Description
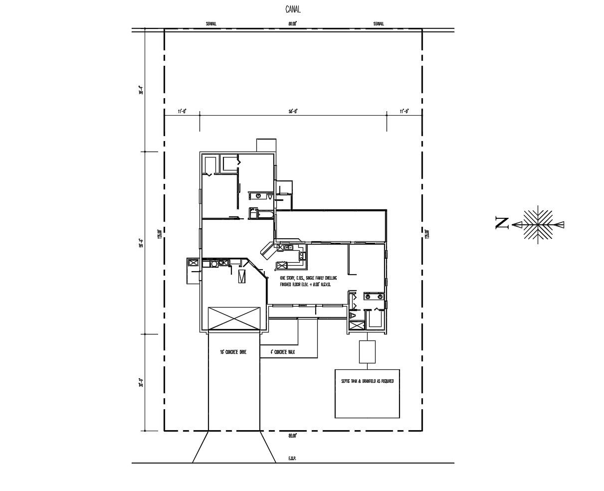
Single-family house with detail dimension in AutoCAD which provide detail of septic tank, finished floor elevation, concrete drive, concrete walk, etc

Uploaded by:
Eiz
Luna

Uploaded by:
Luna