LOGIN
HOME
CATEGORIES
UPLOAD FILE
PRICING
HOUSE PLAN
ABOUT US
CONTACT US
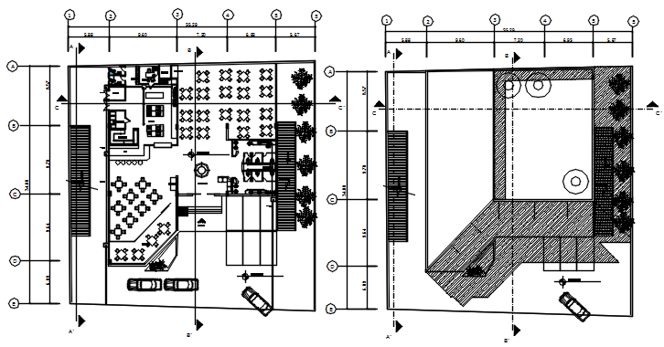
Restaurant plan with furniture details in dwg file
Home
Categories
Architecture
Hotels and Restaurants
Restaurant plan with furniture details in dwg file
Uploaded by:
Eiz
Luna
View Profile
View Profile
Description
Restaurant plan with furniture details in dwg file which provide detail of dining area, washroom, toilet, parking area, etc.
File Type:
DWG
File Size:
1.3 MB
Category::
Architecture
Sub Category::
Hotels and Restaurants
type:
Gold
Uploaded by:
Eiz
Luna
View Profile
Download
Add to libary
find Latest
Related
Files