LOGIN
HOME
CATEGORIES
UPLOAD FILE
PRICING
HOUSE PLAN
ABOUT US
CONTACT US
Plan of building with furniture details in dwg file
Home
Categories
Architecture
School & Hostel
Plan of building with furniture details in dwg file
Uploaded by:
Eiz
Luna
View Profile
View Profile
Description
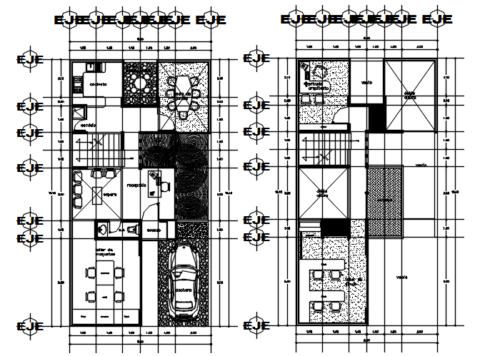
Plan of building with furniture details in dwg file which provide detail of hall, waiting area, class, washroom, toilet, car parking, etc.
File Type:
DWG
File Size:
837 KB
Category::
Architecture
Sub Category::
School & Hostel
type:
Gold
Uploaded by:
Eiz
Luna
View Profile
Download
Add to libary
find Latest
Related
Files