LOGIN
HOME
CATEGORIES
UPLOAD FILE
PRICING
HOUSE PLAN
ABOUT US
CONTACT US
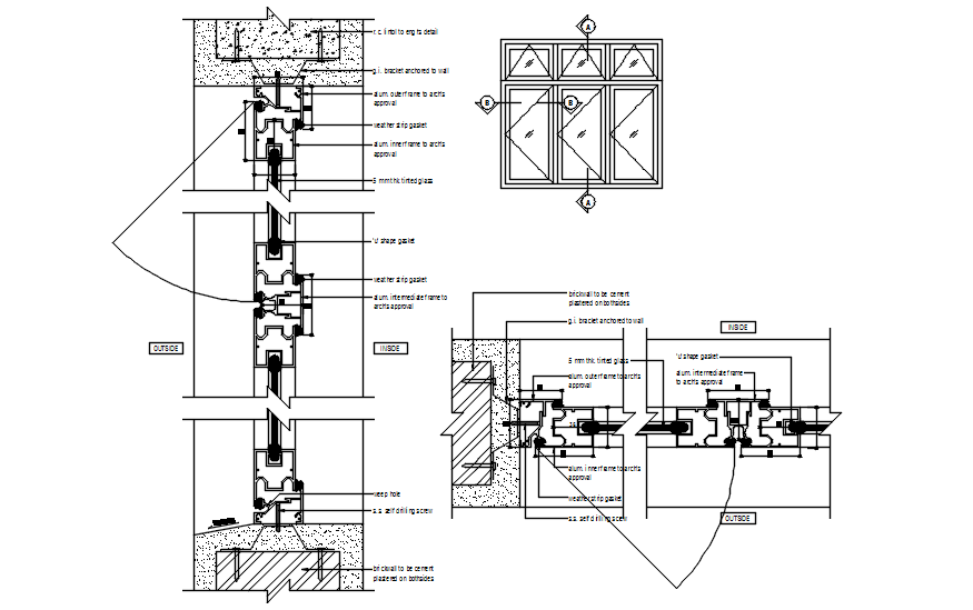
Construction detail of aluminum window in dwg file
Home
Categories
Details
Construction Details
Construction detail of aluminum window in dwg file
Uploaded by:
K.H.J
Jani
View Profile
View Profile
Description
Construction detail of aluminum window in dwg file it includes detail of aluminum casement window,elevations,plan,section,etc
File Type:
DWG
File Size:
172 KB
Category::
Details
Sub Category::
Construction Details
type:
Gold
Uploaded by:
K.H.J
Jani
View Profile
Download
Add to libary
find Latest
Related
Files