LOGIN
HOME
CATEGORIES
UPLOAD FILE
PRICING
HOUSE PLAN
ABOUT US
CONTACT US
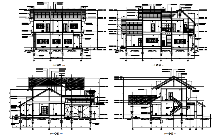
Elevation drawing of building in dwg file
Home
Categories
Architecture
University
Elevation drawing of building in dwg file
Uploaded by:
Eiz
Luna
View Profile
View Profile
Description
Elevation drawing of building in dwg file which includes detail of back elevation, detail of floor level, etc.
File Type:
DWG
File Size:
1.6 MB
Category::
Architecture
Sub Category::
University
type:
Gold
Uploaded by:
Eiz
Luna
View Profile
Download
Add to libary
find Latest
Related
Files