LOGIN
HOME
CATEGORIES
UPLOAD FILE
PRICING
HOUSE PLAN
ABOUT US
CONTACT US
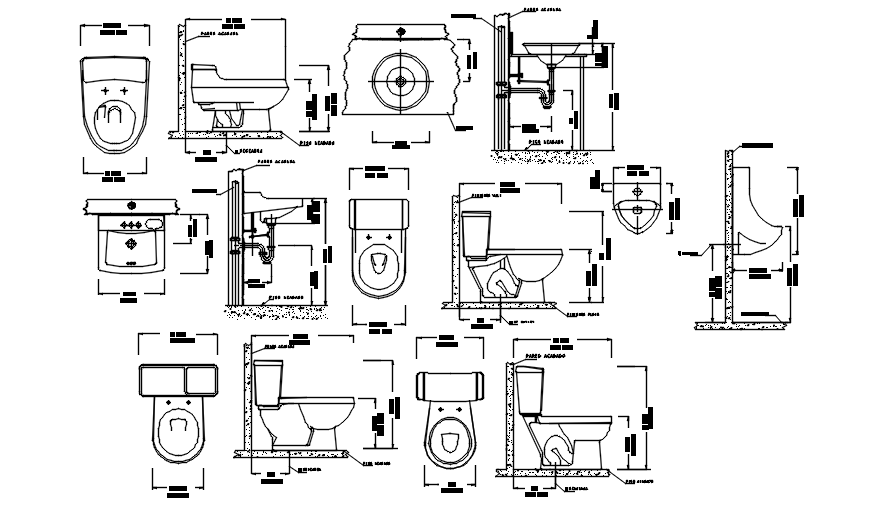
Dwg file of bathroom fixtures blocks
Home
Categories
Dwg Cad Blocks
Sanitary Ware Cad Block
Dwg file of bathroom fixtures blocks
Uploaded by:
K.H.J
Jani
View Profile
View Profile
Description
Dwg file of bathroom fixtures blocks it includes top view,side view,front view it also includes bathtub, urinals,bidets, basin,etc
File Type:
DWG
File Size:
298 KB
Category::
Dwg Cad Blocks
Sub Category::
Sanitary Ware Cad Block
type:
Gold
Uploaded by:
K.H.J
Jani
View Profile
Download
Add to libary
find Latest
Related
Files