Floor plan of house 28' x 50' in AutoCAD
Description
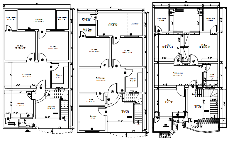
Floor plan of house 28' x 50' in AutoCAD which provides detail of drawing room, bedroom, kitchen with dining area, lounge, bathroom, toilet, storeroom, porch, etc.

Uploaded by:
Eiz
Luna

Uploaded by:
Luna