LOGIN
HOME
CATEGORIES
UPLOAD FILE
PRICING
HOUSE PLAN
ABOUT US
CONTACT US
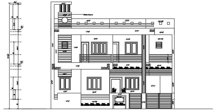
Elevation of the bungalow in dwg file
Home
Categories
Architecture
Bungalow House Design
Elevation of the bungalow in dwg file
Uploaded by:
K.H.J
Jani
View Profile
View Profile
Description
Elevation of the bungalow in dwg file it includes front elevation with dimensions,floor level,doors,windows,rooftop,etc
File Type:
DWG
File Size:
750 KB
Category::
Architecture
Sub Category::
Bungalow House Design
type:
Gold
Uploaded by:
K.H.J
Jani
View Profile
Download
Add to libary
find Latest
Related
Files