LOGIN
HOME
CATEGORIES
UPLOAD FILE
PRICING
HOUSE PLAN
ABOUT US
CONTACT US
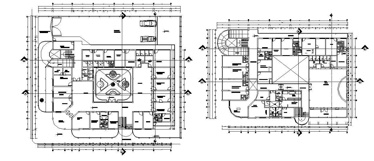
Autocad drawing of health center
Home
Categories
Architecture
Hospital Projects
Autocad drawing of health center
Uploaded by:
K.H.J
Jani
View Profile
View Profile
Description
Autocad drawing of health center it include ground floor layout, first-floor layout it also includes reception, waiting area, doctors cabin, kitchen, toilets,etc
File Type:
DWG
File Size:
3.6 MB
Category::
Architecture
Sub Category::
Hospital Projects
type:
Gold
Uploaded by:
K.H.J
Jani
View Profile
Download
Add to libary
find Latest
Related
Files