LOGIN
HOME
CATEGORIES
UPLOAD FILE
PRICING
HOUSE PLAN
ABOUT US
CONTACT US
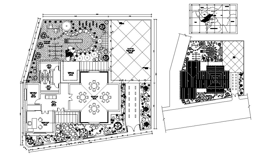
Kindergarten Site Plan In DWG File
Home
Categories
Architecture
School & Hostel
Kindergarten Site Plan In DWG File
Uploaded by:
K.H.J
Jani
View Profile
View Profile
Description
Kindergarten Site Plan In DWG File it includes ground floor layout, rooftop layout it also includes classroom, art room, playground, admin area.
File Type:
DWG
File Size:
3.7 MB
Category::
Architecture
Sub Category::
School & Hostel
type:
Gold
Uploaded by:
K.H.J
Jani
View Profile
Download
Add to libary
find Latest
Related
Files