LOGIN
HOME
CATEGORIES
UPLOAD FILE
PRICING
HOUSE PLAN
ABOUT US
CONTACT US
2 Storey House Floor Plan In DWG File
Home
Categories
Architecture
House Plan
2 Storey House Floor Plan In DWG File
Uploaded by:
Eiz
Luna
View Profile
View Profile
Description
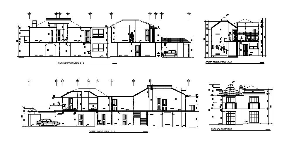
2 Storey House Floor Plan In DWG File which provides detail of the different section, detail of back elevation, detail of floor level.
File Type:
DWG
File Size:
2.8 MB
Category::
Architecture
Sub Category::
House Plan
type:
Gold
Uploaded by:
Eiz
Luna
View Profile
Download
Add to libary
find Latest
Related
Files