LOGIN
HOME
CATEGORIES
UPLOAD FILE
PRICING
HOUSE PLAN
ABOUT US
CONTACT US
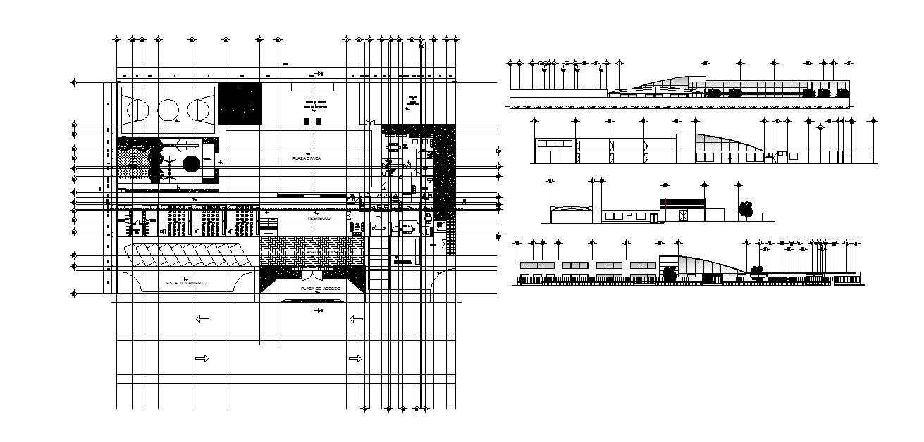
Autocad drawing of institute layout
Home
Categories
Architecture
University
Autocad drawing of institute layout
Uploaded by:
K.H.J
Jani
View Profile
View Profile
Description
Autocad drawing of institute layout it include ground floor layout,elevations it also includes classroom,garden area,basketball ground,computer room,etc
File Type:
DWG
File Size:
1.9 MB
Category::
Architecture
Sub Category::
University
type:
Gold
Uploaded by:
K.H.J
Jani
View Profile
Download
Add to libary
find Latest
Related
Files