LOGIN
HOME
CATEGORIES
UPLOAD FILE
PRICING
HOUSE PLAN
ABOUT US
CONTACT US
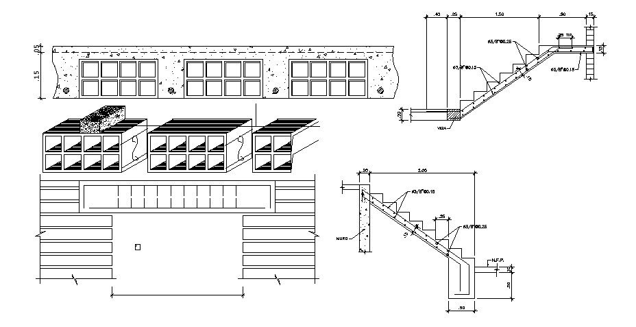
Staircase layout in dwg file
Home
Categories
Details
Interior Details
Staircase layout in dwg file
Uploaded by:
K.H.J
Jani
View Profile
View Profile
Description
Staircase layout in dwg file it includes plan,section,elevation it also include construction detail,doors,window detail,etc
File Type:
DWG
File Size:
234 KB
Category::
Details
Sub Category::
Interior Details
type:
Gold
Uploaded by:
K.H.J
Jani
View Profile
Download
Add to libary
find Latest
Related
Files