Dwg file of residential house layout
Description
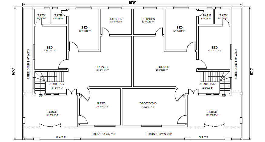
Dwg file of residential house layout it includes foundation plan, site plan it also includes kitchen, drawing room, dining room, bedrooms, toilets, bathroom, parking area,etc
Uploaded by:
K.H.J
Jani

