LOGIN
HOME
CATEGORIES
UPLOAD FILE
PRICING
HOUSE PLAN
ABOUT US
CONTACT US
Drawing of residential house design in autocad
Home
Categories
Architecture
House Plan
Drawing of residential house design in autocad
Uploaded by:
Eiz
Luna
View Profile
View Profile
Description
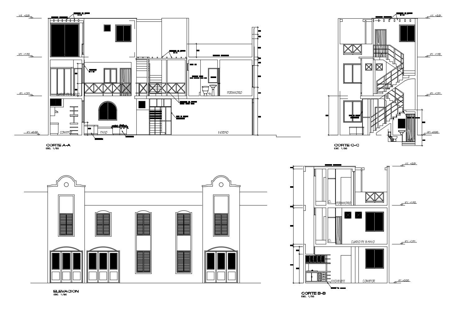
Drawing of residential house design in autocad which provides detail of front elevation, detail of different sections, detail of floor level, etc.
File Type:
DWG
File Size:
946 KB
Category::
Architecture
Sub Category::
House Plan
type:
Gold
Uploaded by:
Eiz
Luna
View Profile
Download
Add to libary
find Latest
Related
Files