LOGIN
HOME
CATEGORIES
UPLOAD FILE
PRICING
HOUSE PLAN
ABOUT US
CONTACT US
Building Drawing Elevation Section In DWG File
Home
Categories
Architecture
Corporate Building
Building Drawing Elevation Section In DWG File
Uploaded by:
Eiz
Luna
View Profile
View Profile
Description
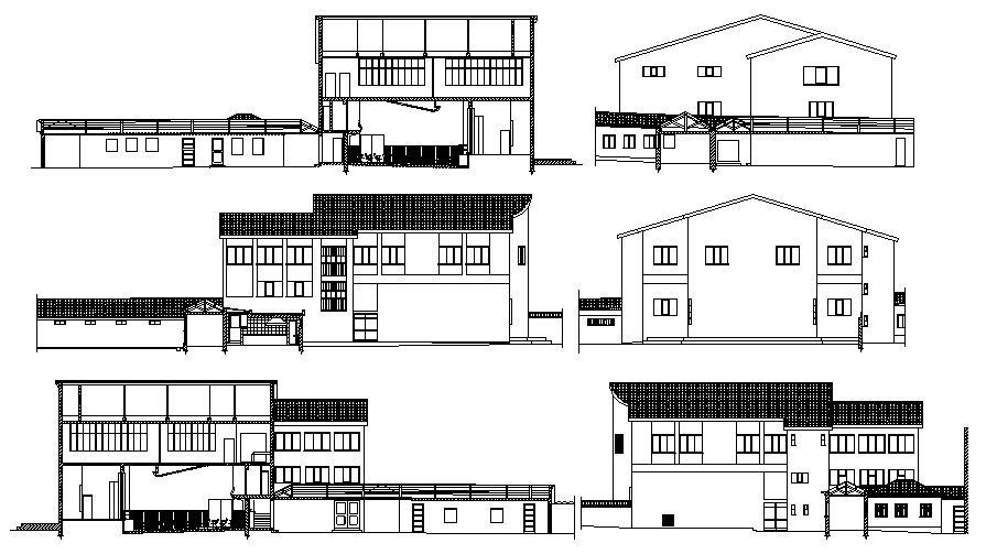
Building Drawing Elevation Section In DWG File it includes detail of front elevation, side elevation, back elevation, detail of doors and windows.
File Type:
DWG
File Size:
345 KB
Category::
Architecture
Sub Category::
Corporate Building
type:
Gold
Uploaded by:
Eiz
Luna
View Profile
Download
Add to libary
find Latest
Related
Files