LOGIN
HOME
CATEGORIES
UPLOAD FILE
PRICING
HOUSE PLAN
ABOUT US
CONTACT US
Shopping Mall Plan In DWG File
Home
Categories
Architecture
Mall & Shopping Center
Shopping Mall Plan In DWG File
Uploaded by:
Eiz
Luna
View Profile
View Profile
Description
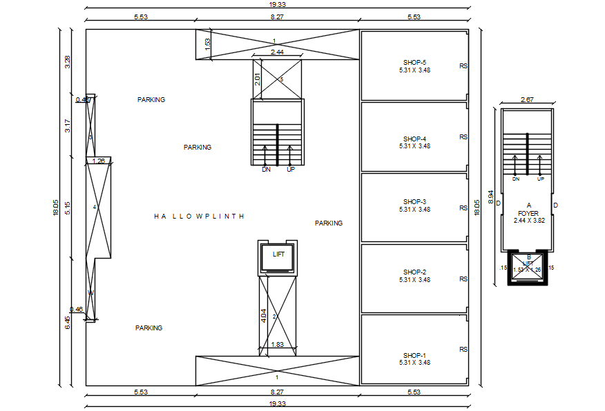
Shopping Mall Plan In DWG File which includes detail of shops, parking area, WC and bathroom.
File Type:
DWG
File Size:
163 KB
Category::
Architecture
Sub Category::
Mall & Shopping Center
type:
Gold
Uploaded by:
Eiz
Luna
View Profile
Download
Add to libary
find Latest
Related
Files