House Plan Elevation And Section In DWG File
Description
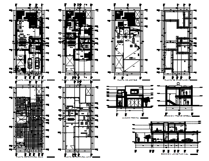
House Plan Elevation And Section In DWG File which provides detail of drawing room, bedroom, kitchen, dining room, bathroom. It also gives detail of the foundation plan.

Uploaded by:
Eiz
Luna

Uploaded by:
Luna