LOGIN
HOME
CATEGORIES
UPLOAD FILE
PRICING
HOUSE PLAN
ABOUT US
CONTACT US
Small Condo Design In AutoCAD File
Home
Categories
Architecture
House Plan
Small Condo Design In AutoCAD File
Uploaded by:
Eiz
Luna
View Profile
View Profile
Description
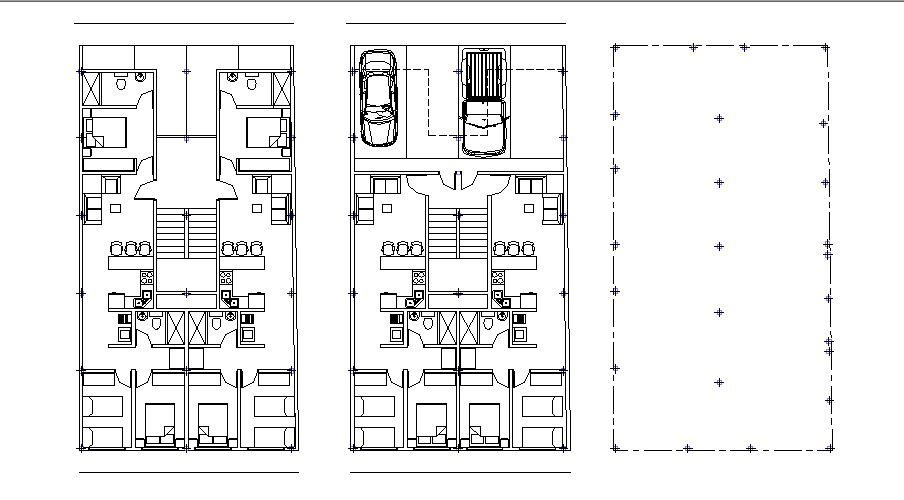
Small Condo Design In AutoCAD File which provide detail of hall, bedrooms, kitchen, dining area, bathroom, toilet, etc it also gives detail of the parking area.
File Type:
DWG
File Size:
315 KB
Category::
Architecture
Sub Category::
House Plan
type:
Gold
Uploaded by:
Eiz
Luna
View Profile
Download
Add to libary
find Latest
Related
Files