LOGIN
HOME
CATEGORIES
UPLOAD FILE
PRICING
HOUSE PLAN
ABOUT US
CONTACT US
Roof Plan In DWG File
Home
Categories
Architecture
House Plan
Roof Plan In DWG File
Uploaded by:
Eiz
Luna
View Profile
View Profile
Description
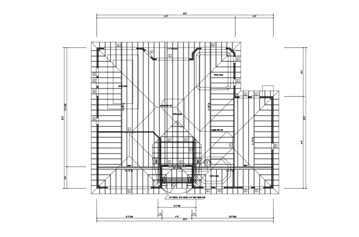
Roof Plan In DWG File with detail dimension in AutoCAD which provide detail of stepped ceiling, aluminum ridge vent, girder, top of a knee wall.
File Type:
DWG
File Size:
3.1 MB
Category::
Architecture
Sub Category::
House Plan
type:
Gold
Uploaded by:
Eiz
Luna
View Profile
Download
Add to libary
find Latest
Related
Files