Hotel Ground Floor Plan In DWG File
Description
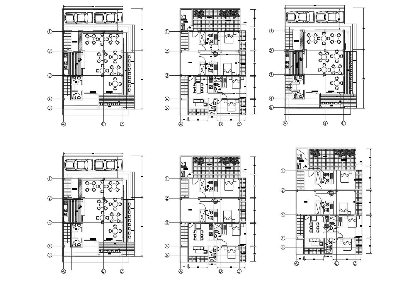
Hotel Ground Floor Plan In DWG File which provides detail of hall, rooms, restaurant area, kitchen area, bathroom. It also provides detail of car parking, garden area.

Uploaded by:
Eiz
Luna

Uploaded by:
Luna