Indoor sports complex design plan
Description
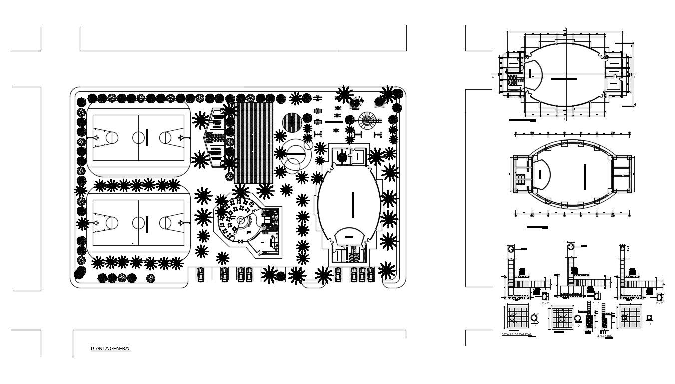
Indoor sports complex design plan in AutoCad format that showing a top view of the sports ground, landscaping design, structure plan, car parking plan, washroom, toilet, etc.

Uploaded by:
Eiz
Luna

Uploaded by:
Luna